Réf : HOCQ-BEGLES

Bègles (33130) Opportunité

3 Pièce(s)
2 Chambre(s)
1 Salle(s) de bain

Les infos Essentielles

Caractéristiques Valeurs
Code postal 33130
Surface habitable (m²) 64,49 m²
Surface loi Carrez (m²) 64,68 m²
Nombre de chambre(s) 2
Caractéristiques Valeurs
Nombre de pièces 3
Ascenseur OUI
Nb de salle de bains 1
Cuisine Américaine
Caractéristiques Valeurs
Mode de chauffage Autre
Type de chauffage Autre
Format de chauffage Collectif
Interphone OUI
Caractéristiques Valeurs
Balcon OUI
Murs mitoyens 2
Nombre de parking 1
Exposition Sud-Ouest
Caractéristiques Valeurs
Année de construction 2011
Copropriété NON

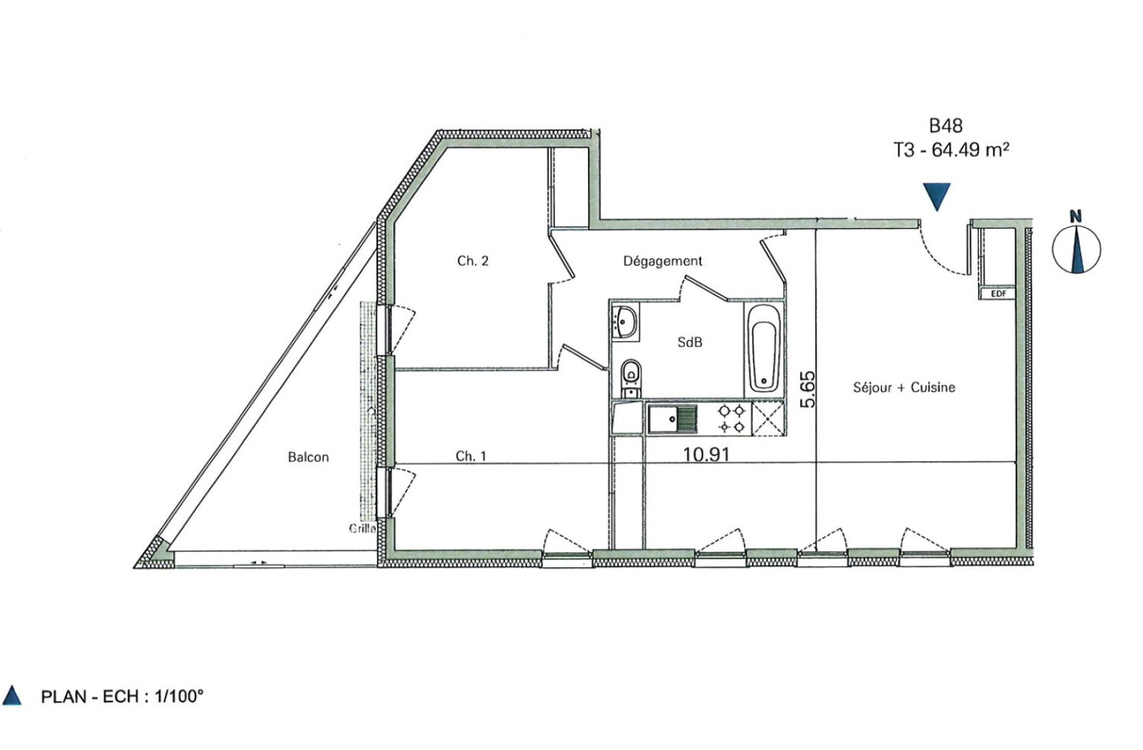
Dans un immeuble de 2011 nous vous proposons un appartement de 64.68m2 avec 2 chambres situé au rez-de-chaussée d'un immeuble de 3 étages

Celui ci est composé d'une pièce de vie avec cusine ouverte de 29.13m2, une salle de bain avec toilettes 5.22m2, un dégagement qui améne aux 2 chambres de 13.2m2 et 11m2 avec placard et permet de couper les pièces de vie et la partie nuit 6.13m2.

Un balcon de 7 m2 permet de profiter d'un espace extérieur et une place de parking compléte ce bien

Cet appartement est situé proche de l'arret de tram LA BELLE ROSE à Bègles.

Les charges de copro de 2024 sont de 1700€

Pour plus d'information n'hésitez pas à nous contacter, une visite virtuelle est disponible.

Les infos Financières

Prix de vente honoraires TTC inclus 190 000 €
Prix de vente honoraires TTC exclus 177 500 €
Honoraires TTC à la charge acquéreur 7,04 %
Charges 160 €

Nos outils

Imprimer

Localisation Du bien

  • Commerces et santé
  • Loisirs
  • Ecoles
  • Transports
  • Pratique

Les infos Energetiques

DPE GES

Montant estimé des dépenses annuelles d'énergie pour un usage standard est compris entre 864 € et 1 168 € . Prix moyens des énergies indexés sur les années 2021, 2022 et 2023 (abonnements compris).

Intéressé(e) par Ce bien ?

* Champ obligatoire

Les informations recueillies sur ce formulaire sont enregistrées dans un fichier informatisé par La Boite Immo agissant comme Sous-traitant du traitement pour la gestion de la clientèle/prospects de l'Agence / du Réseau qui reste Responsable du Traitement de vos Données personnelles. La base légale du traitement repose sur l'intérêt légitime de l'Agence / du Réseau. Elles sont conservées jusqu'à demande de suppression et sont destinées à l'Agence / au Réseau. Conformément à la loi « informatique et libertés », vous disposez des droits d’accès, de rectification, d’effacement, d’opposition, de limitation et de portabilité de vos données. Vous pouvez retirer votre consentement à tout moment en contactant directement l’Agence / Le Réseau. Consultez le site https://cnil.fr/fr pour plus d’informations sur vos droits. Si vous estimez, après avoir contacté l'Agence / le Réseau, que vos droits « Informatique et Libertés » ne sont pas respectés, vous pouvez adresser une réclamation à la CNIL. Nous vous informons de l’existence de la liste d'opposition au démarchage téléphonique « Bloctel », sur laquelle vous pouvez vous inscrire ici : https://www.bloctel.gouv.fr Dans le cadre de la protection des Données personnelles, nous vous invitons à ne pas inscrire de Données sensibles dans le champ de saisie libre.
Ce site est protégé par reCAPTCHA, les Politiques de Confidentialité et les Conditions d'Utilisation de Google s'appliquent.
contacter l'agence
Ces biens peuvent aussi vous intéresser
Exclusif
Lormont (33310)

VIAGER OCCUPE 1 TETE DAME 78 Ans